Malden

Herenhof 9

€ 650.000,- K.K.

Omschrijving

Nagenoeg VRIJSTAANDE woning met maar liefst 185 m2 woonoppervlakte en o.a. een moderne keuken, 4 slaapkamers, waarvan één kamer op de begane grond met een eigen badkamer voorzien van douche-cabine en wastafel.
Deze keurig onderhouden woning uit 1996 ligt op een ruim perceel van 510 m2 in een rustige woonwijk en tegelijk dicht bij alle voorzieningen van Malden. Het huis zelf biedt veel ruimte en privacy door zijn ligging op de hoek, .

lees meer

Kenmerken

  • Status Verkocht
  • Bouwjaar 1996
  • Woonoppervlakte ca. 185 m2
  • Perceeloppervlakte 510 m2
  • Aantal kamers 6
  • Aantal slaapkamers 4
Meer kenmerken
Heb je vragen of wil je even binnenkijken?
Neem vrijblijvend contact met ons op
Deze woning delen:

Omschrijving

Nagenoeg VRIJSTAANDE woning met maar liefst 185 m2 woonoppervlakte en o.a. een moderne keuken, 4 slaapkamers, waarvan één kamer op de begane grond met een eigen badkamer voorzien van douche-cabine en wastafel.
Deze keurig onderhouden woning uit 1996 ligt op een ruim perceel van 510 m2 in een rustige woonwijk en tegelijk dicht bij alle voorzieningen van Malden. Het huis zelf biedt veel ruimte en privacy door zijn ligging op de hoek, met enkel de berging en achtergelegen kamer geschakeld aan die van de buren.
Door de extra breedte van de woning en het perceel is er veel inpandige ruimte en heeft dit huis veel gebruiksmogelijkheden.

De verzorgde achtertuin ligt goed op de zonzijde en beschikt over een gazon, borders met beplanting, meerdere terrassen, een houten tuinhuis en een deugdelijke, deels stenen, erfafscheiding.

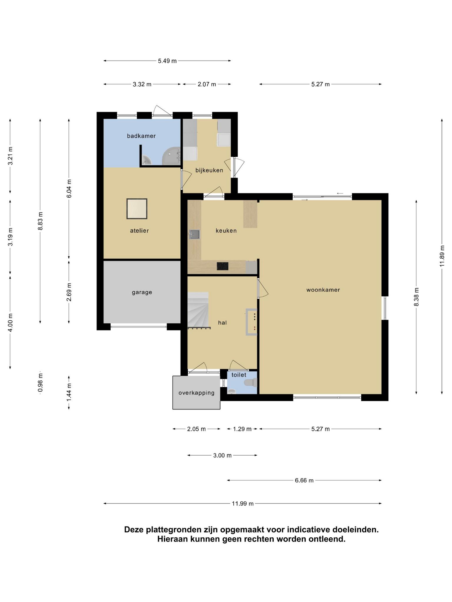
Begane grond: entree, hal met parketvloer, toilet en meterkast. Royale woonkamer (ca. 44m2) met eiken parketvloer in visgraat-motief, en schuifpui naar terras en tuin. Open keuken met een moderne en luxe hoekopstelling uit 2014 met diverse inbouwapparatuur. Bijkeuken met witgoed-aansluitingen en toegang tot de extra werk- of slaapkamer met half open badkamer met een douche en wastafel. Zowel via deze kamer als de bijkeuken is de tuin te bereiken.

Eerste verdieping: ruime overloop met een separaat toilet, drie royale slaapkamers ( oorspronkelijk 4 kamers), waarvan één met een vaste kledingkast met schuifpanelen. Nette badkamer met ligbad, douche-cabine en meubel met dubbele wastafel. Alle slaapkamers hebben een laminaatvloer.

Tweede verdieping: vaste trap naar praktische zolderruimte met veel bergruimte, een dakvenster en de opstelling voor de HR-ketel.

- HR-combiketel Remeha bouwjaar 2017
- Schilderwerk buiten 2019
- Dakbedekking van de platte daken is in 2020 vernieuwd ( met 10 jaar garantie)
- Volledig geïsoleerd en energielabel B
- Onderhoud binnen en buiten is uitstekend
- De garage is verbouwd tot kamer en berging.

Heb je vragen of wil je even binnenkijken?
Neem vrijblijvend contact met ons op
Deze woning delen:

Overdracht

  • Status Verkocht
  • Aanvaarding In overleg

Bouwvorm

  • Soort woonhuis Geschakelde woning
  • Soort bouw Bestaande bouw
  • Bouwjaar 1996
  • Soort dak Tentdak
  • Onderhoud binnen Goed tot uitstekend
  • Onderhoud buiten Goed tot uitstekend

Indeling

  • Aantal kamers 6 kamers
  • Aantal slaapkamers 4
  • Aantal badkamers 2 badkamers
  • Badkamervoorzieningen Douche, wastafel, ligbad, douche, dubbele wastafel
  • Aantal woonlagen 3 woonlagen
  • Voorzieningen Mechanische ventilatie, rolluiken, tv kabel, buitenzonwering, schuifpui, dakraam, glasvezel kabel

Energie

  • Energielabel B
  • Isolatie Volledig geisoleerd
  • Verwarming Cv ketel
  • Warm water Cv ketel
  • C.v.-ketel type Gas
  • C.v.-ketel bouwjaar 2017
  • Eigendom Eigendom

Buitenruimte

  • Ligging Aan rustige weg, in woonwijk
  • Hoofdtuin Achtertuin
  • Oppervlakte hoofdtuin ca. 255 m2
  • Ligging hoofdtuin Oost
  • Achterom
  • Kwaliteit tuin Verzorgd

Bergruimte

  • Schuur / berging Aangebouwd hout
  • Aantal schuren / bergingen 1
  • Voorzieningen

Parkeergelegenheid

  • Parkeerfaciliteiten
  • Garage Garage mogelijk

Oppervlakte & Inhoud

  • Gebruiksoppervlakte wonen ca. 185 m2
  • Oppervlakte gebouwgebonden ca. 3 m2
  • Externe bergruimte ca. 7 m2
  • Overige inpandige ruimte ca. 9 m2
  • Inhoud ca. 700 m3
  • Perceeloppervlakte ca. 510 m2

Documenten

Neem contact met ons op

Neem vrijblijvend contact met ons op of vraag een waardebepaling aan.

Waardebepaling aanvragen

Onze site gebruikt cookies

Om onze website gemakkelijker en persoonlijker te maker, gebruiken we cookies en vergelijkbare technieken. Je kunt altijd zelf kiezen welke soorten cookies je wilt toestaan. Lees hierover meer in onze cookieverklaring.