Nijmegen

Ligusterstraat 35

€ 255.000,- K.K.

Omschrijving

Goed onderhouden maisonette van 83 m2 met drie slaapkamers in de geliefde en rustige wijk Heseveld, dicht bij het Centrum van Nijmegen. In de directe omgeving zijn meerdere winkels, sportvoorzieningen, een speeltuin en verbindingen naar het Centrum, Universiteit, ziekenhuizen en uitvalswegen.

De woning op twee verdiepingen ligt in een grotendeels gerenoveerd kleinschalig gebouw.

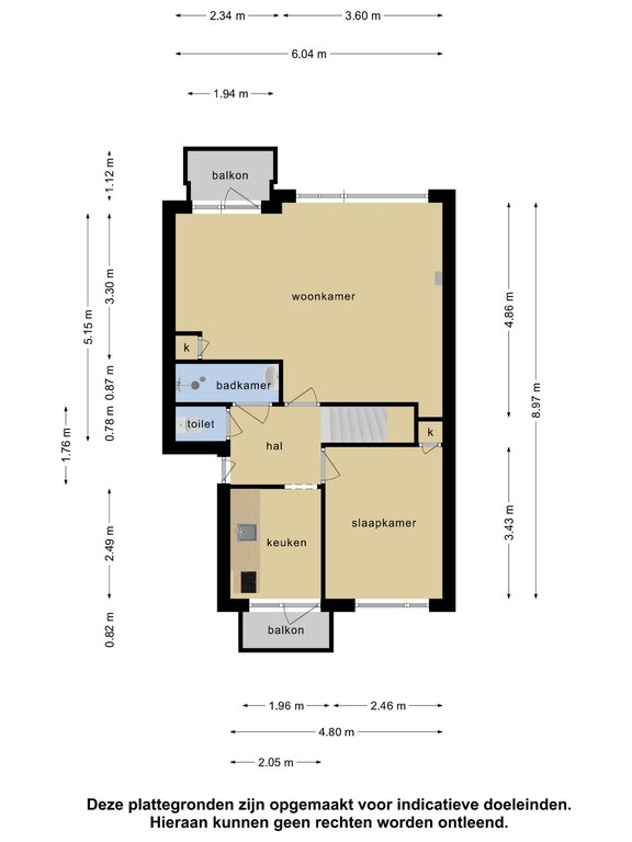
Indeling:

Entree met brievenbussen, .

lees meer

Kenmerken

  • Status Verkocht
  • Bouwjaar 1954
  • Woonoppervlakte ca. 83 m2
  • Perceeloppervlakte
  • Aantal kamers 4
  • Aantal slaapkamers 3
Meer kenmerken
Heb je vragen of wil je even binnenkijken?
Neem vrijblijvend contact met ons op
Deze woning delen:

Omschrijving

Goed onderhouden maisonette van 83 m2 met drie slaapkamers in de geliefde en rustige wijk Heseveld, dicht bij het Centrum van Nijmegen. In de directe omgeving zijn meerdere winkels, sportvoorzieningen, een speeltuin en verbindingen naar het Centrum, Universiteit, ziekenhuizen en uitvalswegen.

De woning op twee verdiepingen ligt in een grotendeels gerenoveerd kleinschalig gebouw.

Indeling:

Entree met brievenbussen, beltableau, trap en doorloop naar bergingen.

1e verdieping:

Ruime hal, toilet, kleine badkamer met douche en vaste wastafel en doorloop naar riante woon-eetkamer met een op het zuidwesten gelegen balkon, vaste kast en nette laminaatvloer.

Aan de andere zijde van de woning is de in 2007 geplaatste keuken met vaatwasser, koelkast, kookplaat, afzuigkap, c.v.-installatie en doorloop naar het tweede balkon dat op het noordoosten ligt.

De naastgelegen slaapkamer met inbouwkast zou eventueel bij de keuken gevoegd kunnen worden.

Begane grond:

Een niveau lager zijn de twee slaapkamers, beide met een inbouwkast en de trapkast met meterkast en bergmogelijkheden.

De inpandig te bereiken berging met wasmachine-drogeropstelling en ruimte voor bijvoorbeeld een extra koelkast heeft ook een deur naar een buitendeur op straatniveau.

Voorts:

- Bouwjaar 1954
- HR Nefit combiketel 2006
- Aluminium kozijnen met dubbel glas
- Energielabel D
- Gezonde VvE met maandelijkse bijdrage van € 128,-- inclusief verbruik water

Heb je vragen of wil je even binnenkijken?
Neem vrijblijvend contact met ons op
Deze woning delen:

Overdracht

  • Status Verkocht
  • Aanvaarding In overleg

Bouwvorm

  • Soort woonhuis
  • Soort bouw Bestaande bouw
  • Bouwjaar 1954
  • Soort dak Plat dak
  • Onderhoud binnen Goed
  • Onderhoud buiten Goed

Indeling

  • Aantal kamers 4 kamers
  • Aantal slaapkamers 3
  • Aantal badkamers 1 badkamer
  • Badkamervoorzieningen Douche, wastafel
  • Aantal woonlagen 2 woonlagen
  • Voorzieningen Mechanische ventilatie, glasvezel kabel

Energie

  • Energielabel D
  • Isolatie Dubbel glas
  • Verwarming Cv ketel
  • Warm water Cv ketel
  • C.v.-ketel type Gas
  • C.v.-ketel bouwjaar 2006
  • Eigendom Eigendom

Buitenruimte

  • Ligging Aan rustige weg, in woonwijk
  • Hoofdtuin
  • Oppervlakte hoofdtuin
  • Ligging hoofdtuin
  • Achterom
  • Kwaliteit tuin

Bergruimte

  • Schuur / berging Inpandig
  • Aantal schuren / bergingen 1
  • Voorzieningen Voorzien van elektra, voorzien van water

Parkeergelegenheid

  • Parkeerfaciliteiten Openbaar parkeren
  • Garage Geen garage

Oppervlakte & Inhoud

  • Gebruiksoppervlakte wonen ca. 83 m2
  • Oppervlakte gebouwgebonden ca. 4 m2
  • Externe bergruimte
  • Overige inpandige ruimte
  • Inhoud ca. 265 m3
  • Perceeloppervlakte

Documenten

Neem contact met ons op

Neem vrijblijvend contact met ons op of vraag een waardebepaling aan.

Waardebepaling aanvragen

Onze site gebruikt cookies

Om onze website gemakkelijker en persoonlijker te maker, gebruiken we cookies en vergelijkbare technieken. Je kunt altijd zelf kiezen welke soorten cookies je wilt toestaan. Lees hierover meer in onze cookieverklaring.