Ewijk

Groene Heuvels 255

€ 70.000,- K.K.

Omschrijving

*** GEZIEN DE GROTE BELANGSTELLING VOOR DEZE WONING IS HET NIET MEER MOGELIJK EEN BEZICHTIGING TE PLANNEN, INDIEN U UW GEGEVENS WILT ACHTERLATEN PLAATSEN WIJ U OP DE RESERVELIJST ***
Op vakantiepark 't Broeckhuys, aan een een rustig hofje tegenover een vijver gelegen vrijstaande recreatiewoning met tuin rondom en mogelijkheid tot parkeren op eigen terrein. Het park beschikt over vele voorzieningen en kenmerkt zich door de grote kav.

lees meer

Kenmerken

  • Status Verkocht
  • Bouwjaar 1996
  • Woonoppervlakte ca. 82 m2
  • Perceeloppervlakte 521 m2
  • Aantal kamers 4
  • Aantal slaapkamers 3
Meer kenmerken
Heb je vragen of wil je even binnenkijken?
Neem vrijblijvend contact met ons op
Deze woning delen:

Omschrijving

*** GEZIEN DE GROTE BELANGSTELLING VOOR DEZE WONING IS HET NIET MEER MOGELIJK EEN BEZICHTIGING TE PLANNEN, INDIEN U UW GEGEVENS WILT ACHTERLATEN PLAATSEN WIJ U OP DE RESERVELIJST ***
Op vakantiepark 't Broeckhuys, aan een een rustig hofje tegenover een vijver gelegen vrijstaande recreatiewoning met tuin rondom en mogelijkheid tot parkeren op eigen terrein. Het park beschikt over vele voorzieningen en kenmerkt zich door de grote kavels waarop de woningen gebouwd zijn, zo ook deze volledig geïsoleerde woning met een perceel van 521 m2.

De woning is aan de binnenzijde matig onderhouden en dient op onderdelen gemoderniseerd dan wel op opgeknapt te worden. Permanente bewoning is niet toegestaan.

Het park is gelegen in “het land van Maas en Waal”, nabij de A50 en A73 en op slechts 10 autominuten afstand van Nijmegen. Daarbij nodigt het prachtige rivierenlandschap uit tot het maken van mooie wandel- en fietstochten.

Het park beschikt over een groot recreatiemeer en de gelegenheid voor uitbundig zwem-, duik- en visplezier. Kinderen vermaken zich bij de kidsclub, de (indoor)speeltuin of het overdekte zwembad met peuterbad.

De bijzondere ligging van het park in de schitterende natuur leent zich bij uitstek voor het maken van fiets- en wandeltochten. Maar ook voor een dagje uit kunt u alle kanten op, aangezien er in de omgeving werkelijk voor iedereen iets leuks te verzinnen is.

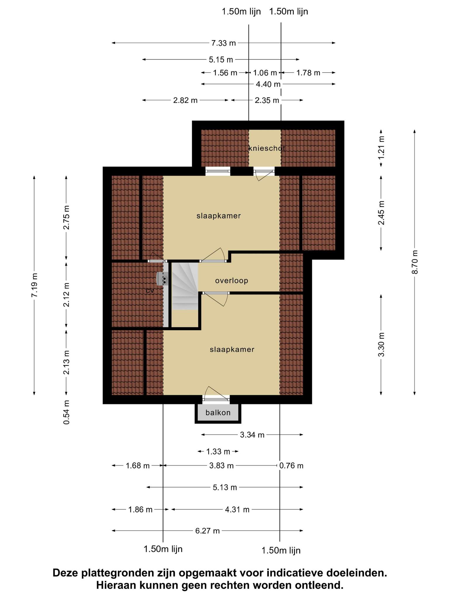
Indeling:
Entree, hal, eenvoudige badkamer met ligbad, toilet en wastafel, meterkast, bijkeuken met aansluiting voor witgoed en buitendeur, slaapkamer. Tuingerichte woonkamer met openslaande deuren naar de tuin en te vernieuwen keuken.

Verdieping: overloop, slaapkamer aan de achterzijde, berging en stookruimte met Remeha combiketel, aparte bergruimte, slaapkamer aan de voorzijde met toegang tot het balkon.

Bijzonderheden:

- Goede ligging ten opzichte van de zon.
- Parkeren op eigen terrein.
- De woning is gebouwd in 1996 en is volledig geïsoleerd.
- Bij koop van de woning wordt u eigenaar van de woning, de grond is eigendom van een Holding.
- Voor het gebruik van de grond wordt erfpachtcanon in rekening gebracht, deze bedraagt ca. € 344.- per jaar.
- Parkbijdrage: onderhoud park, inclusief voorschot water/reinigingsheffing, afvalverwijdering ca. €230 per mnd. (incl. btw). Jaarlijks vast te stellen.
- De woning mag niet permanent worden bewoond en leent zich daardoor uitstekend voor verhuur of tijdelijke
huisvesting. U kunt dit zelf regelen of regelen via de beheerder van het park.

Heb je vragen of wil je even binnenkijken?
Neem vrijblijvend contact met ons op
Deze woning delen:

Overdracht

  • Status Verkocht
  • Aanvaarding In overleg

Bouwvorm

  • Soort woonhuis Vrijstaande woning
  • Soort bouw Bestaande bouw
  • Bouwjaar 1996
  • Soort dak Zadeldak
  • Onderhoud binnen Matig
  • Onderhoud buiten Redelijk

Indeling

  • Aantal kamers 4 kamers
  • Aantal slaapkamers 3
  • Aantal badkamers 1 badkamer
  • Badkamervoorzieningen Ligbad, toilet, wastafel
  • Aantal woonlagen 2 woonlagen
  • Voorzieningen Rookkanaal, frans balkon

Energie

  • Energielabel
  • Isolatie Volledig geisoleerd
  • Verwarming Cv ketel
  • Warm water Cv ketel
  • C.v.-ketel type Gas
  • C.v.-ketel bouwjaar
  • Eigendom Eigendom

Buitenruimte

  • Ligging Aan park, vrij uitzicht
  • Hoofdtuin Tuin rondom
  • Oppervlakte hoofdtuin
  • Ligging hoofdtuin
  • Achterom
  • Kwaliteit tuin Verwaarloosd

Bergruimte

  • Schuur / berging Vrijstaand hout
  • Aantal schuren / bergingen 1
  • Voorzieningen

Parkeergelegenheid

  • Parkeerfaciliteiten Op eigen terrein
  • Garage Geen garage

Oppervlakte & Inhoud

  • Gebruiksoppervlakte wonen ca. 82 m2
  • Oppervlakte gebouwgebonden ca. 1 m2
  • Externe bergruimte ca. 5 m2
  • Overige inpandige ruimte
  • Inhoud ca. 309 m3
  • Perceeloppervlakte ca. 521 m2

Documenten

Neem contact met ons op

Neem vrijblijvend contact met ons op of vraag een waardebepaling aan.

Waardebepaling aanvragen

Onze site gebruikt cookies

Om onze website gemakkelijker en persoonlijker te maker, gebruiken we cookies en vergelijkbare technieken. Je kunt altijd zelf kiezen welke soorten cookies je wilt toestaan. Lees hierover meer in onze cookieverklaring.