Malden

Dravik 26

€ 389.000,- K.K.

Omschrijving

Aan de rand van Malden op een gewilde locatie gelegen goed onderhouden tussenwoning met o.a. vier slaapkamers, zolder met dakkapel, acht zonnepanelen en een op het zuidoosten gelegen tuin met een berging.

Rustige, groene en kindvriendelijke buurt op steenworp afstand van het bos. De ruime voortuin biedt de mogelijkheid te parkeren op eigen terrein.

Bouwjaar: ca. 1986, woonoppervlak ca. 120 m2, oppervlakte perceel: ca. 142 m.

lees meer

Kenmerken

  • Status Verkocht
  • Bouwjaar 1986
  • Woonoppervlakte ca. 120 m2
  • Perceeloppervlakte 142 m2
  • Aantal kamers 5
  • Aantal slaapkamers 3
Meer kenmerken
Heb je vragen of wil je even binnenkijken?
Neem vrijblijvend contact met ons op
Deze woning delen:

Omschrijving

Aan de rand van Malden op een gewilde locatie gelegen goed onderhouden tussenwoning met o.a. vier slaapkamers, zolder met dakkapel, acht zonnepanelen en een op het zuidoosten gelegen tuin met een berging.

Rustige, groene en kindvriendelijke buurt op steenworp afstand van het bos. De ruime voortuin biedt de mogelijkheid te parkeren op eigen terrein.

Bouwjaar: ca. 1986, woonoppervlak ca. 120 m2, oppervlakte perceel: ca. 142 m2, inhoud: ca. 404 m3

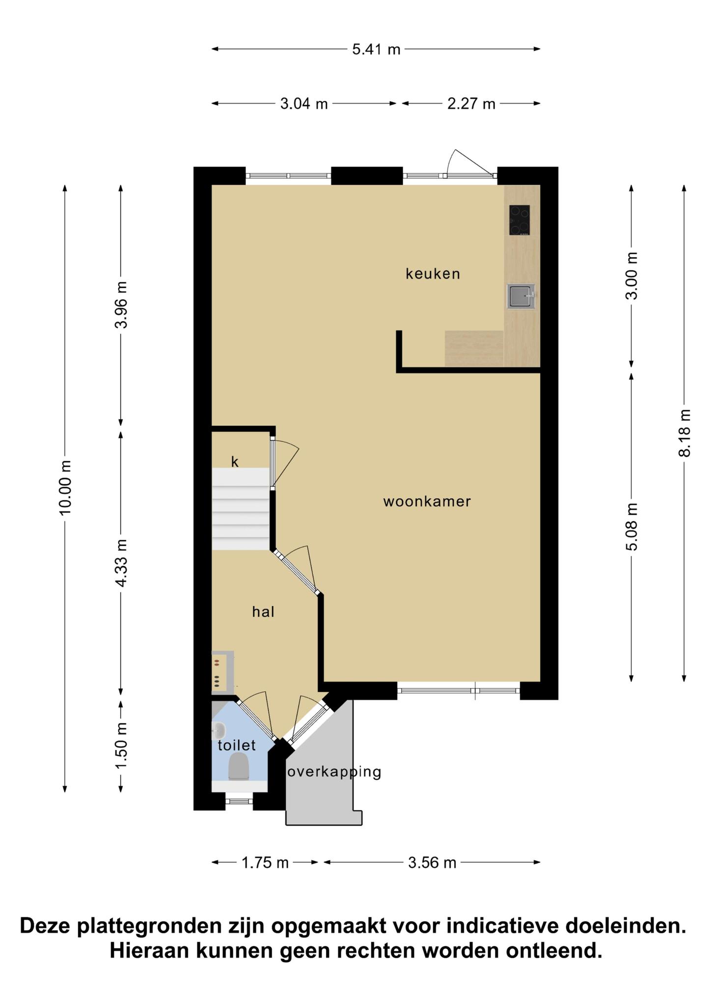
Begane grond: entree, hal, meterkast en toilet. Lichte L-vormige woonkamer met een laminaatvloer en een bergkast. Aansluitend een half open hoek opgestelde keuken met nette keukeninrichting. Vanuit de keuken is er toegang tot de tuin. 

Eerste verdieping: overloop, drie slaapkamers, allen met vloerbedekking. Badkamer met inloopdouche met glazen wand, 2e toilet en wastafel.

Zolder: via vaste trap te bereiken open zolder die door de aanwezigheid van een dakkapel eenvoudi op te splitsen is in een voorzolder en een zolderkamer. Hier is de c.v.-opstelling en de aansluitingen voor wasmachine en droger.

Tuin: achtertuin van ca. 13 meter diep op het zuidoosten met een stenen berging en achterom.

Bijzonderheden:

- Energielabel C
- Projectnotaris
- kosten kadastrale inmeting voor rekening van koper (ca. € 880,--)
- Voorzien van dakisolatie, muurisolatie en voorzien van dubbel glas (muv voordeur en wc)
- Voorzien van 8 zonnepanelen (niet in de prijs inbegrepen, kunnen worden overgekocht)
- vloerbedekkign laminaat en vloerbedekking (niet in de prijs inbegrepen, kunnen worden overgekocht)
- C.v. HR-combiketel 2005
- Glasvezel aansluiting aanwezig

Heb je vragen of wil je even binnenkijken?
Neem vrijblijvend contact met ons op
Deze woning delen:

Overdracht

  • Status Verkocht
  • Aanvaarding In overleg

Bouwvorm

  • Soort woonhuis Tussenwoning
  • Soort bouw Bestaande bouw
  • Bouwjaar 1986
  • Soort dak Zadeldak
  • Onderhoud binnen Goed
  • Onderhoud buiten Goed

Indeling

  • Aantal kamers 5 kamers
  • Aantal slaapkamers 3
  • Aantal badkamers 1 badkamer
  • Badkamervoorzieningen Toilet, wastafel, wastafelmeubel, inloopdouche
  • Aantal woonlagen 3 woonlagen
  • Voorzieningen Glasvezel kabel, zonnepanelen

Energie

  • Energielabel C
  • Isolatie Dakisolatie, muurisolatie, grotendeels dubbelglas
  • Verwarming Cv ketel
  • Warm water Cv ketel
  • C.v.-ketel type Gas
  • C.v.-ketel bouwjaar 2005
  • Eigendom Eigendom

Buitenruimte

  • Ligging Aan rustige weg, in woonwijk
  • Hoofdtuin Achtertuin
  • Oppervlakte hoofdtuin ca. 72 m2
  • Ligging hoofdtuin Zuidoost
  • Achterom 1
  • Kwaliteit tuin Normaal

Bergruimte

  • Schuur / berging Vrijstaand steen
  • Aantal schuren / bergingen 1
  • Voorzieningen Voorzien van elektra

Parkeergelegenheid

  • Parkeerfaciliteiten Openbaar parkeren, op eigen terrein
  • Garage Geen garage

Oppervlakte & Inhoud

  • Gebruiksoppervlakte wonen ca. 120 m2
  • Oppervlakte gebouwgebonden ca. 2 m2
  • Externe bergruimte ca. 4 m2
  • Overige inpandige ruimte
  • Inhoud ca. 404 m3
  • Perceeloppervlakte ca. 142 m2

Documenten

Neem contact met ons op

Neem vrijblijvend contact met ons op of vraag een waardebepaling aan.

Waardebepaling aanvragen

Onze site gebruikt cookies

Om onze website gemakkelijker en persoonlijker te maker, gebruiken we cookies en vergelijkbare technieken. Je kunt altijd zelf kiezen welke soorten cookies je wilt toestaan. Lees hierover meer in onze cookieverklaring.