Malden

De Bats 12

€ 650.000,- K.K.

Omschrijving

Ruimte, groen en comfort voor het hele gezin – deze twee-onder-een-kapwoning in Malden heeft het allemaal!

5 slaapkamers, 2 badkamers, ruime tuin, garage, serre, etc. Woonoppervlakte 224 m2 inclusief een serre van 22 m2, inhoud 794 m3, perceel 490 m2. Voorzien van 21 zonnepanelen, dakisolatie, muurisolatie en dubbel glas. Energielabel A.

Op zoek naar een fijne gezinswoning in een groene, kindvriendelijke omgeving? Deze ruim.

lees meer

Kenmerken

  • Status Verkocht
  • Bouwjaar 1977
  • Woonoppervlakte ca. 224 m2
  • Perceeloppervlakte 490 m2
  • Aantal kamers 7
  • Aantal slaapkamers 5
Meer kenmerken
Heb je vragen of wil je even binnenkijken?
Neem vrijblijvend contact met ons op
Deze woning delen:

Omschrijving

Ruimte, groen en comfort voor het hele gezin – deze twee-onder-een-kapwoning in Malden heeft het allemaal!

5 slaapkamers, 2 badkamers, ruime tuin, garage, serre, etc. Woonoppervlakte 224 m2 inclusief een serre van 22 m2, inhoud 794 m3, perceel 490 m2. Voorzien van 21 zonnepanelen, dakisolatie, muurisolatie en dubbel glas. Energielabel A.

Op zoek naar een fijne gezinswoning in een groene, kindvriendelijke omgeving? Deze ruime twee-onder-een-kapwoning in Malden ligt in een rustige en ruim opgezette woonwijk met alle voorzieningen binnen handbereik. Denk aan het winkelcentrum, sportvelden, basisscholen en zelfs het bos – alles op loopafstand! En voor de middelbare school, de universiteit of het ziekenhuis fiets je heerlijk via het snelfietspad dwars door het groen.

Indeling:

Begane grond
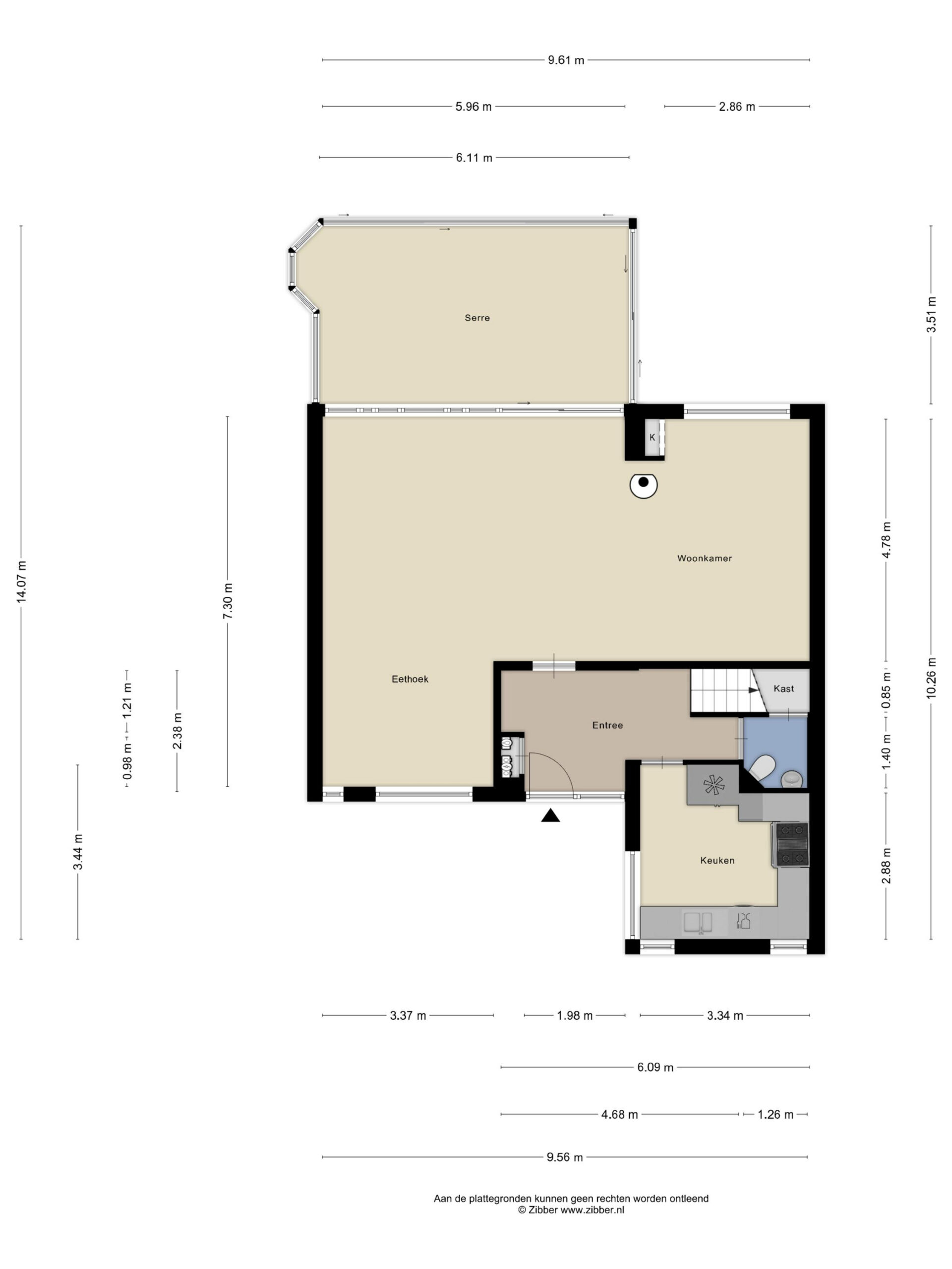
Je komt binnen in een ruime hal met garderobe en moderne meterkast (inclusief glasvezel). De tuingerichte woonkamer met schuifpui naar de serre is een heerlijke plek om te ontspannen. De strakke gietvloer (PU) en pelletkachel zorgen voor comfort en sfeer.

De serre is van april tot september een veel gebruikt verlengstuk van de woonkamer – een heerlijke plek met een fijn klimaat: warm dankzij de vloerverwarming en zomers heerlijk open door de schuifbare glazen wanden en zelfs een elektrisch te openen dak. De pooltafel kan achter blijven, dus de eerste spelletjesavond zijn dan meteen geregeld!

Aan de voorzijde vind je de dichte L-vormige keuken met veel lichtinval door de op de voortuin gerichte raampartij.

Het ruime toilet op de begane grond heeft een authentieke uitstraling.

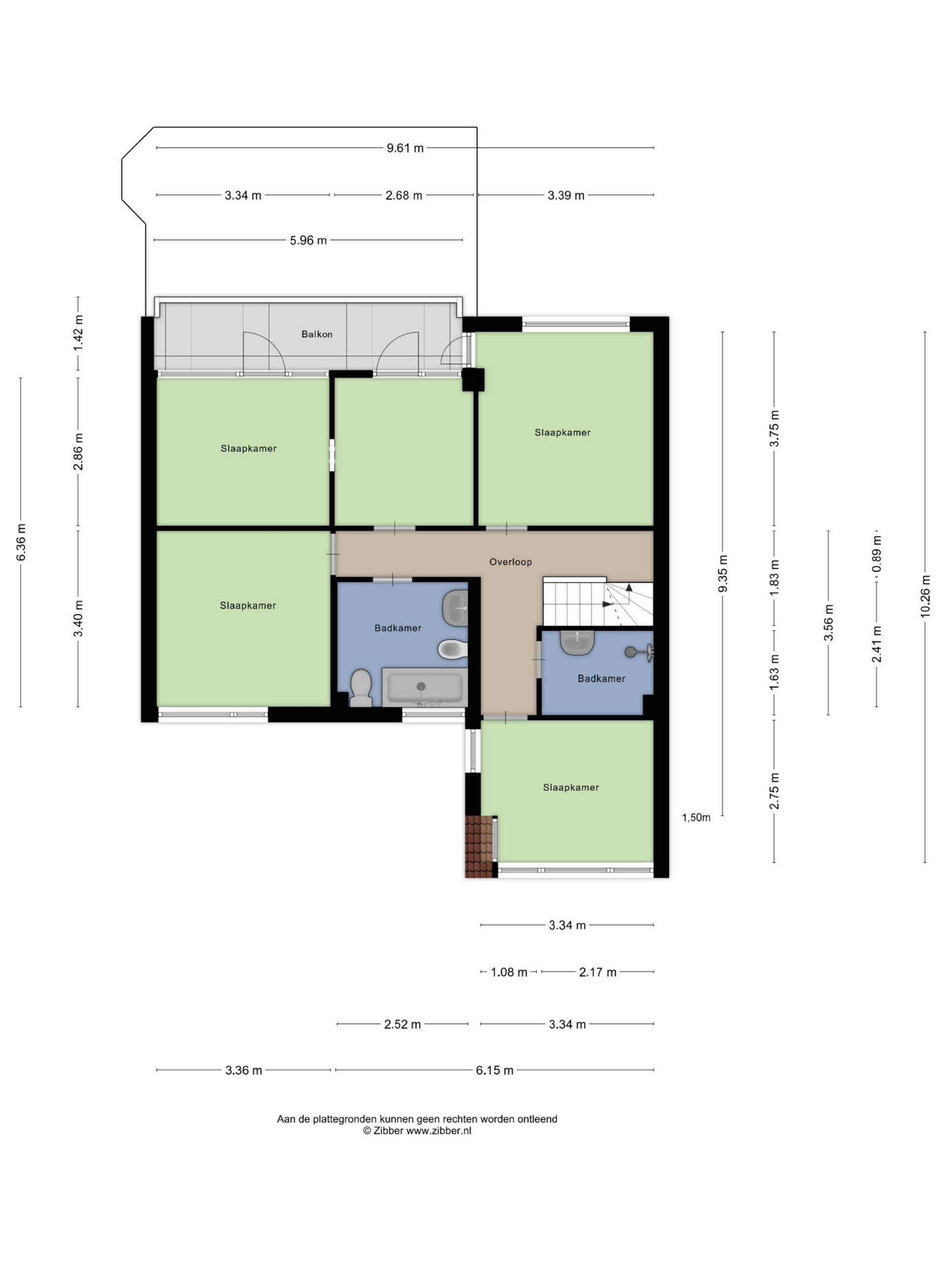
Eerste verdieping:
Via de overloop bereik je vier slaapkamers en twee badkamers. Eén badkamer is in aanbouw en biedt de mogelijkheid voor een extra douche of toilet – ideaal voor een groot gezin.

De slaapkamer met dakkapel en screens is licht en comfortabel. Aan de overzijde vind je een royale kamer met toegang tot het balkon. De aangrenzende zonnige kamer is op speelse wijze uitgebreid tot een sfeervolle en suite-opstelling. En ook de vierde slaapkamer heeft een prima formaat en veel licht.

De kozijnen en deuren aan de tuinzijde zijn vernieuwd en voorzien van dubbel glas.

Tweede verdieping:
Volledig gerenoveerd en strak afgewerkt: een grote slaapkamer met twee dakkapellen, vaste wastafel en volop bergruimte achter de schotten.
Op de voorzolder is ruimte voor wasmachine en droger, met extra dakraam en berging.

Zonnige tuin & duurzame extra’s

De op het zuidwesten gelegen tuin is een oase van rust met meerdere zitjes en een fraai aangelegde vijver – inclusief vissen en pomp! Ideaal voor lange zomeravonden met het gezin of gezellig buiten eten met vrienden.

Achterin vind je de stenen garage met sedumdak en een handige achterom grenzend aan openbare parkeerplaatsen.

Het nu nog lege kippenhok vraagt gewoon om een paar gezellig scharrelende kippetjes die dagelijks voor verse eitjes zorgen!

Samengevat:

Groene, rustige gezinswijk

5 slaapkamers

2 badkamers (waarvan 1 in aanbouw)

Serre met vloerverwarming en pooltafel

Tuin op het zuidwesten met vijver en omheining

Stenen garage met sedumdak

Op loopafstand van scholen, winkels en natuur

Snel op de fiets naar universiteit en ziekenhuis

Wordt dit jullie nieuwe (t)huis?
Een woning met ruimte, licht en volop mogelijkheden voor gezinnen die comfortabel willen wonen in een fijne, groene omgeving. Neem snel contact op voor een bezichtiging en ontdek zelf wat dit huis allemaal te bieden heeft!

Heb je vragen of wil je even binnenkijken?
Neem vrijblijvend contact met ons op
Deze woning delen:

Overdracht

  • Status Verkocht
  • Aanvaarding In overleg

Bouwvorm

  • Soort woonhuis Twee onder een kapwoning
  • Soort bouw Bestaande bouw
  • Bouwjaar 1977
  • Soort dak Zadeldak
  • Onderhoud binnen Goed
  • Onderhoud buiten Goed

Indeling

  • Aantal kamers 7 kamers
  • Aantal slaapkamers 5
  • Aantal badkamers 2 badkamers
  • Badkamervoorzieningen Ligbad, toilet, wastafel, douche, wastafel
  • Aantal woonlagen 3 woonlagen
  • Voorzieningen Mechanische ventilatie, buitenzonwering, rookkanaal, schuifpui, dakraam, glasvezel kabel, zonnepanelen

Energie

  • Energielabel A
  • Isolatie Dakisolatie, muurisolatie, dubbel glas
  • Verwarming Cv ketel
  • Warm water Cv ketel
  • C.v.-ketel type Gas
  • C.v.-ketel bouwjaar 2014
  • Eigendom Eigendom

Buitenruimte

  • Ligging In woonwijk
  • Hoofdtuin Achtertuin
  • Oppervlakte hoofdtuin ca. 270 m2
  • Ligging hoofdtuin Zuidwest
  • Achterom 1
  • Kwaliteit tuin Verzorgd

Bergruimte

  • Schuur / berging
  • Aantal schuren / bergingen
  • Voorzieningen

Parkeergelegenheid

  • Parkeerfaciliteiten Openbaar parkeren
  • Garage Vrijstaand steen

Oppervlakte & Inhoud

  • Gebruiksoppervlakte wonen ca. 224 m2
  • Oppervlakte gebouwgebonden ca. 8 m2
  • Externe bergruimte ca. 24 m2
  • Overige inpandige ruimte
  • Inhoud ca. 794 m3
  • Perceeloppervlakte ca. 490 m2

Documenten

Neem contact met ons op

Neem vrijblijvend contact met ons op of vraag een waardebepaling aan.

Waardebepaling aanvragen

Onze site gebruikt cookies

Om onze website gemakkelijker en persoonlijker te maker, gebruiken we cookies en vergelijkbare technieken. Je kunt altijd zelf kiezen welke soorten cookies je wilt toestaan. Lees hierover meer in onze cookieverklaring.