Nijmegen

Daalsehof 5 A

€ 350.000,- K.K.

Omschrijving

**Vanwege de overweldigende belangstelling is het helaas niet meer mogelijk om een afspraak voor een bezichtiging te plannen. U kunt zich aanmelden voor de wachtlijst door een bezichtiging aan te vragen op Funda**

In de zeer geliefde wijk Nijmegen Oost bieden we een geheel gerenoveerd sfeervol appartement aan, met het centrum en benodigde faciliteiten op 5 minuten loopafstand. Het appartement, met veel lichtinval, bedraagt een oppe.

lees meer

Kenmerken

  • Status Verkocht
  • Bouwjaar 1947
  • Woonoppervlakte ca. 67 m2
  • Perceeloppervlakte
  • Aantal kamers 3
  • Aantal slaapkamers 1
Meer kenmerken
Heb je vragen of wil je even binnenkijken?
Neem vrijblijvend contact met ons op
Deze woning delen:

Omschrijving

**Vanwege de overweldigende belangstelling is het helaas niet meer mogelijk om een afspraak voor een bezichtiging te plannen. U kunt zich aanmelden voor de wachtlijst door een bezichtiging aan te vragen op Funda**

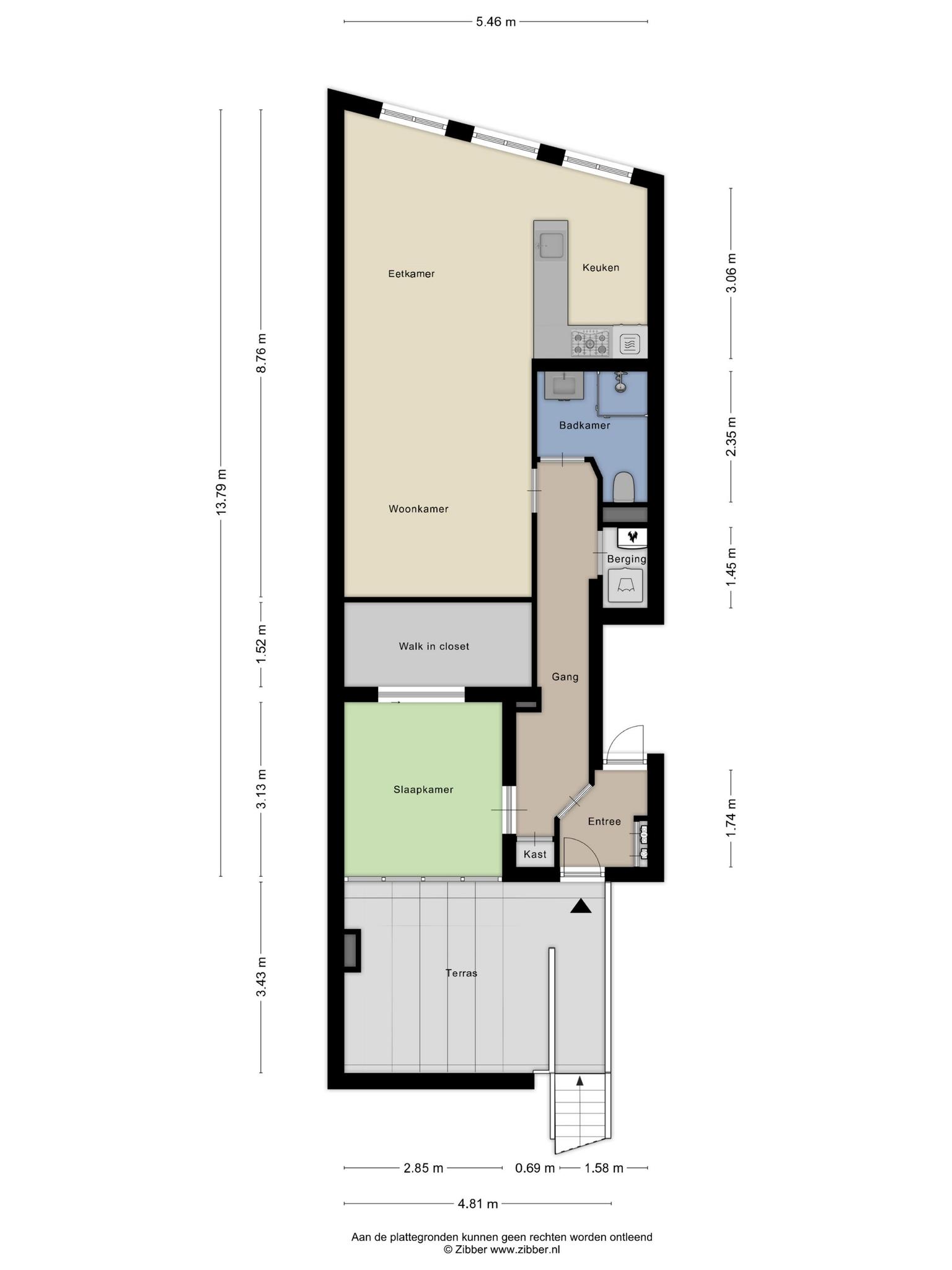
In de zeer geliefde wijk Nijmegen Oost bieden we een geheel gerenoveerd sfeervol appartement aan, met het centrum en benodigde faciliteiten op 5 minuten loopafstand. Het appartement, met veel lichtinval, bedraagt een oppervlakte van ca. 67m2. Het heeft een mooie open living, een luxe open keuken, een slaapkamer met en suite kleedkamer/werkkamer, een ruim dakterras en berging op de begane grond.

Indeling:

Het appartement is gelegen op de eerste verdieping. Via het hofje van de Daalseweg, dat achter de Daalseweg ligt, is het gebouw bereikbaar. Hier is ook ruime parkeergelegenheid, waar met een bewonersvergunning (indien voorradig) en evt. bezoekersvergunning geparkeerd kan worden.

Op de begane grond is de buitenberging met genoeg ruimte voor opslag en bijv. meerdere fietsen. Via de trap wordt de entree bereikt. Hier is de met de bovenburen gedeelde hal. De hal bevat tevens de meterkast.

Bij binnenkomst valt meteen de mooie, strakke afwerking van het appartement op! Een mooie lange gang met houten vloer geeft toegang tot de ruime slaapkamer, met ensuite kledingkast/werkkamer.

Terug in de gang is de doorloop naar de woonkamer, met tevens de garderobe, een ruime inbouwkast, de wasruimte met c.v.-ketel en de luxe badkamer met wc, inloopdouche en wastafel in meubel.

De riante woonkamer is een lichte open ruimte met, net als in de rest van de woning, een prachtige houten vloer. De open keuken uit 2007 heeft een speelse vorm met eetbar, een ruim werkblad, inbouwapparatuur en voldoende kastruimte.

De kers op de taart is natuurlijk het fijne ruime dakterras: een rustige plek waar je een deel van de dag heerlijk in de zon kunt genieten.

Woonoppervlakte ca. 67 m2, dakterras ca. 16 m2, berging ca 6 m2, inhoud ca. 224 m2, bouwjaar 1947, gerenoveerd sinds de jaren '90. Er is een energielabel D, wat is afgegeven vóór het plaatsen van het huidige dubbel glas aan de voor en achterzijde in de tevens nieuwe kozijnen (2021). Een nieuw energielabel kan aangevraagd worden
Gezonde Vve met maandelijkse bijdrage € 50,--. Voorts bijdrage water, vve (verzekering, bankrekening) ca. €30,-- per maand. Er is geen MJOP.

Heb je vragen of wil je even binnenkijken?
Neem vrijblijvend contact met ons op
Deze woning delen:

Overdracht

  • Status Verkocht
  • Aanvaarding In overleg

Bouwvorm

  • Soort woonhuis
  • Soort bouw Bestaande bouw
  • Bouwjaar 1947
  • Soort dak Mansarde dak
  • Onderhoud binnen Goed
  • Onderhoud buiten Goed

Indeling

  • Aantal kamers 3 kamers
  • Aantal slaapkamers 1
  • Aantal badkamers 1 badkamer
  • Badkamervoorzieningen Wastafel, wastafelmeubel, inloopdouche
  • Aantal woonlagen 1 woonlagen
  • Voorzieningen Mechanische ventilatie

Energie

  • Energielabel D
  • Isolatie Dubbel glas
  • Verwarming Cv ketel
  • Warm water Cv ketel
  • C.v.-ketel type Gas
  • C.v.-ketel bouwjaar 2007
  • Eigendom Eigendom

Buitenruimte

  • Ligging In woonwijk
  • Hoofdtuin
  • Oppervlakte hoofdtuin
  • Ligging hoofdtuin
  • Achterom
  • Kwaliteit tuin

Bergruimte

  • Schuur / berging Vrijstaand steen
  • Aantal schuren / bergingen 1
  • Voorzieningen Voorzien van elektra

Parkeergelegenheid

  • Parkeerfaciliteiten Openbaar parkeren, betaald parkeren, parkeervergunningen
  • Garage Geen garage

Oppervlakte & Inhoud

  • Gebruiksoppervlakte wonen ca. 67 m2
  • Oppervlakte gebouwgebonden ca. 16 m2
  • Externe bergruimte ca. 6 m2
  • Overige inpandige ruimte
  • Inhoud ca. 224 m3
  • Perceeloppervlakte

Documenten

    Neem contact met ons op

    Neem vrijblijvend contact met ons op of vraag een waardebepaling aan.

    Waardebepaling aanvragen

    Onze site gebruikt cookies

    Om onze website gemakkelijker en persoonlijker te maker, gebruiken we cookies en vergelijkbare technieken. Je kunt altijd zelf kiezen welke soorten cookies je wilt toestaan. Lees hierover meer in onze cookieverklaring.